Gaja Obid
Voditeljica programa
Na nedavni seji Občinekega sveta Občine Ajdovščina je bil med drugim sprejet sklep o dispoziciji pozidave: Ajdovščina – Slejkoti II. S tem so svetniki dali zeleno luč novemu investitorju in lastniku zemljišč DIOSA invest d. o. o, da lahko pridobi ustrezno gradbeno dovoljenje.
Za obravnavano območje Slejkoti II je bil že leta 2008 sprejet sklep o dispoziciji pozidave, a je takratni investitor po pridobitvi gradbenega dovoljenja od gradnje odstopil oziroma zaradi krize v gradbenišvi te ni nadaljeval. Po 13 letih pa je novi investitor in lastnik zemljišča podal na občino pobudo za spremembo dispozicije pozidave, saj se stara ne sklada z njegovo namero. V tej novi dispoziciji pozidave, pa je občina Ajdovščina dodala tudi še nekaj svojih pogojev, več župan Tadej Beočanin.
Izjava Tadej Beočanin o dispoziciji
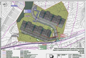
Območje Slejkoti II zavzema nezazidane stavbne parcele na vzhodu v mesto Ajdovščine, nad regionalno cesto Ajdovščina – Col, v površini 1,27 ha. Sedanji investitor predvideva izgradnjo sedmih večstanovanjskih objektov, šlo naj bi za vrstne hiše, ki bodo postavljene v dveh nizih vzporedno s regionalno cesto. Poleg hiš pa je načrtovano še javna cesta s priključkom na regionalno cesto, interna cesta s parkiriščem in obračališčem, ekološki otok, omrežje fekalne kanalizacije, odvodnja padavinskih in zalednih voda, vključno z zadrževalniki, elektroenergetsko omrežje s transformatorsko postajo, javna razsvetljava in vodovodno omrežje s hidroforsko postajo.
V sklopu te investicije bo občina Ajdovščina poskrbela le za hidroforsko postajo, za ostalo pa poskrbi investitor.
Izjava Tadej Beočanin o začetku projekta
Se pa Občina Ajdovščina že nekaj let, kljub novim gradnjam spopada tudi z veliko stanovanjsko stisko, te težave imajo predvsem mladi, ki želijo iti na svoje. V ta namen so kot prva občina v državi pristopili k projektu Ugodnejše hiše za mlade, ki je zasnovan v okviru mednarodnega projekta Back to the Village. Projekt predvideva naselje z do 50 montažnimi hišami v velikosti do 70m2, hiše pa bodo na voljo za mlade in mlade družine po končni ceni okrog 50.000 evrov. Projekt je zaenkrat šele v začetnih fazah:
Izjava Tadej Beočanin o fazi projekta hiš za mlade
Ob že zdajšnji začeti stanovanjski gradnji, ki bo do konca leta 2022 v Ajdovščini zagotovila 250 novih stanovanj, bo projekt Ugodne hiše za mlade družine k reševanju stanovanjske problematike mladih veliko doprinesel.


Ana Štokelj
Za komentiranje se morate prijaviti. Če še nimate uporabniškega računa, si lahko tega ustvarite brezplačno!
Komentarji ne odražajo stališča uredniške politike Primorskega vala. Prosimo, da se pri komentiranju držite teme in ne uporabljate sovražnega govora.
Bodite prvi pri komentiranju novice, oddajte svoj komentar!